混凝土生产线设备厂区全国出售
发布者:长城建机
时间:2018-09-21
不错,您没有听错,作为多年混凝土生产线设备生产厂家,已经在全国各地都有经销商和销售服务点,现在长城建机实行了一个政策就是,您可以直接去当地的长城的经销商那进行购买,也可以来我们河南郑州荥阳厂区,进行参观验货,我们都可以全国出售给您。
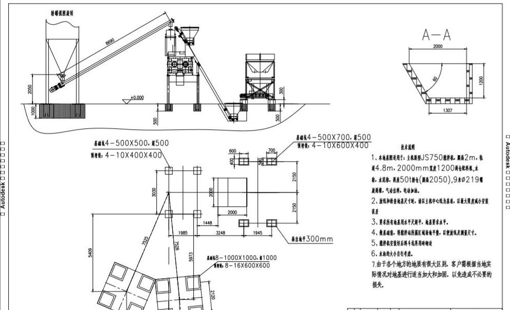
之前,小编给大家讲了混凝土生产线设备型号规格,下面小编就讲讲搅拌设备的设计图和安装示意图,以750型搅拌机为例。
JS750型搅拌机有三种支腿高度,分别为2米支腿、2.7米支腿和3.8米出料(4.5米支腿),通常2米支腿JS750搅拌机用的较多,下面我们来看下2米支腿js750型搅拌机基础安装图:

1、在做基础时请以搅拌机中心为基准起点进行划线做基础,以减少安装误差;
2、本750型搅拌机基础安装图是JS750搅拌机、腿高2m,配料机使用的是PLD1200两仓配料机,同时配有水称量、水泥称量、2座50吨水泥粉仓和9米螺旋2根;
3、要求所有地基用水平尺超平,地基要求水平(有特殊要求的,请安装图纸说明);
4、js750搅拌机安装好后,料斗坑再用砖砌边;
5、水池的大小自行考虑;
6、由于各地土质有很大差别,用户需跟进当地实际情况对地基进行适当加大和加固,以免造成不必要的损失。
注:小编给大家观看的搅拌设备基础图仅供大家参考。
长城能够做到从荥阳市厂区直接全国出售混凝土生产线设备,不让您多花一分钱,赶紧咨询客服得到清楚的价格表吧!
上一篇:长城机械混凝土搅拌机JS1000
下一篇:建搅拌站需要哪些设备
151-883-55510










